

【環保配置】:干法除塵系統,干濕除塵系統等
產品特點
* 機電一體化結構;
* 采用內燃式燃燒機理,燃氣、空氣混合均勻,燃燒完全,點火易,升溫快;
* 高效節能低噪音風機;
* 自動調節比大;
* 控制系統運行安全可靠。
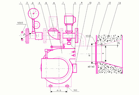
工藝參數
* 然氣壓力:5-50Kpa
* 然氣熱值:8500-10000Kcal/N
* 然氣密度:0.75-1kg/N

| 型號 | Φ | Φ1 | N1—D1 | Φ2 | N2—D2 | A×B | N—d | 風機 | 配鍋爐 |
| ZT80 | Φ195 | Φ250 | 4—Φ14 | Φ100 | 4—Φ18 | 260×120 | 4—Φ14 | 2.2KW | 1t/h |
| ZT160 | Φ270 | Φ325 | 4—Φ14 | Φ110 | 4—Φ18 | 280×145 | 4—Φ14 | 3KW | 2t/h |
| ZT320 | Φ340 | Φ390 | 6—Φ14 | Φ145 | 4—Φ18 | 380×190 | 4—Φ14 | 7.5KW | 4t/h |
| ZT400 | Φ377 | Φ428 | 6—Φ14 | Φ160 | 4—Φ18 | 440×220 | 4—Φ14 | 11KW | 5t/h |
| ZT480 | Φ420 | Φ470 | 6—Φ16 | Φ160 | 4—Φ18 | 440×220 | 4—Φ14 | 11KW | 6t/h |
| ZT640 | Φ480 | Φ530 | 6—Φ16 | Φ180 | 8—Φ18 | 480×245 | 4—Φ18 | 18.5KW | 8t/h |
| ZT800 | Φ510 | Φ560 | 8—Φ16 | Φ180 | 8—Φ18 | 2—265×265 | 6—Φ18 | 30KW | 10t/h |
| ZT1200 | Φ550 | Φ600 | 8—Φ18 | Φ210 | 8—Φ18 | 2—290×280 | 6—Φ18 | 37KW | 15t/h |
| ZT1440 | Φ600 | Φ650 | 8—Φ18 | Φ240 | 8—Φ23 | 2—290×280 | 6—Φ18 | 37KW | 18t/h |
鄭州鼎力新能源技術有限公司 豫ICP備14018430號-9